Avenue Apart Pulkovo

Европейский формат жизни у Пулковских высот

 
Динамично развивающаяся инфраструктура. Пешеходные переходы, детские площадки

В ногу с возможностью

ЖК «AVENUE APART PULKOVO» — это масштабный проект от одного из лидеров российского девелопмента, ГК «Эталон». Комплекс предлагает концепцию европейского комфорт-класса на границе города и природы, объединяя преимущества спокойной жилой среды и прекрасной транспортной доступности. Название «Avenue» подчеркивает его расположение на одной из главных магистралей города — Московском шоссе.

ЖК «AVENUE APART PULKOVO» — это предложение для тех, кто ищет современное и доступное жилье в развивающемся перспективном районе с хорошей транспортной логистикой.

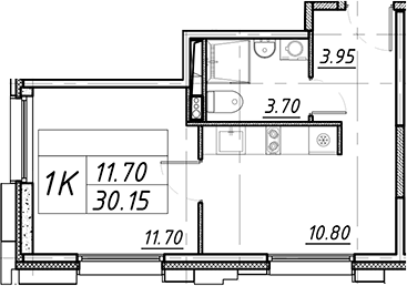
ТИПОВЫЕ ПЛАНИРОВКИ ОБЪЕКТОВ

1

Площадь от 30.15 м2

от 10.769.634 руб

Avenue Apart Pulkovo ЭТО

Застройщик создает внутри комплекса и на его границах полноценную среду для жизни.

Вся территория жилого комплекса огорожена, въезд осуществляется через контрольно-пропускные пункты. Дворы реализованы по принципу «дворов без машин» — весь личный транспорт размещается на наземной периметральной и подземной парковках.

Фасады выполнены в современном европейском стиле. Используются комбинации отделочной штукатурки, керамогранита и декоративных элементов. Панорамное остекление окон и лоджий добавляет комплексу легкости и современности.

ОНЛАЙН КОНСУЛЬТАЦИЯ

получите больше информации о проекте
и задайте свои вопросы

MAX

НЕ НАШЛИ ПОДХОДЯЩЕЕ?

Укажите параметры недвижимости, и мы подберем варианты в течение дня бесплатно

Пожалуйста, укажите телефон
Согласен на обработку персональных данных
Необходимо согласие
Написать в мессенджер